RE/MAX - Moderne DHH in München Norden!
Beschreibung:
Vermietete moderne Doppelhaushälfte in Südausrichtung – Wohnen auf vier EbenenDiese im Jahr 2016 erbaute Doppelhaushälfte überzeugt durch moderne Architektur, eine durchdachte Raumaufteilung und großzügigen Wohnkomfort auf vier Ebenen – ideal für Familien.
Das Erdgeschoss bietet ein helles Wohnzimmer mit Kaminanschluss sowie Zugang zur überdachten Südterrasse und dem gepflegten Garten. Die hochwertige LEICHT-Einbauküche mit Siemens-Geräten und Kochinsel bildet das stilvolle Zentrum des Hauses.
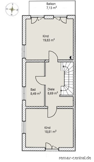
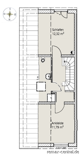
Im Obergeschoss befinden sich zwei großzügige Schlafzimmer, eines davon mit überdachtem Südbalkon, sowie ein exklusives Bad mit Wanne und bodengleicher Dusche. Das Dachgeschoss ergänzt das Raumangebot mit einem Schlafzimmer, einem flexibel nutzbaren Raum (Büro/Ankleide/Kinderzimmer) und eigenem Duschbereich.
Das Untergeschoss verfügt über ein weiteres modernes Bad sowie einen ca. 25 m² großen, beheizten Hobbyraum mit Fußbodenheizung.
Energieeffiziente Haustechnik mit Luft-Wärmepumpe, Solartechnik, Glasfaseranschluss und ein Außenstellplatz runden dieses attraktive Angebot ab.
Vereinbaren Sie jetzt Ihren Besichtigungstermin und erleben Sie diese Immobilie persönlich.
Lagebeschreibung:
In der gewachsenen Wohngegend, in unmittelbarer Nähe zu Naturschutzgebiet und Badesee, und trotzdem gut an den öffenlichen Nahverkehr angebunden - die Lage Feldmoching ist perfekt für alle, die die Vorteile einer Großstadt nutzen und trotzdem ein großes Haus mit Garten in Ruhe genießen wollen.Die verkehrsgünstige Lage bietet kurze Verbindungen mit dem Auto zum Flughafen München, Allianz Arena und Autobahn-Verbindungen A9 / A99.
Öffentliche Verkehrsanbindung:
In 100 m Entfernung befindet sich die Bushaltestelle Weitlstraße mit folgenden Verbindungen
Bus 141: Richtung Scheidplatz
Bus 170: Richtung Kieferngarten
Bus 171: Richtung Am Hart
Bus 172: Richtung Am Hart
U2, Haltestelle Dülferstraße erreichen Sie in 10 Gehminuten (495 m), damit fährt man in knapp 15 Minuten zum Hauptbahnhof.
Die in nur 7 Gehminuten (550 m) erreichbare städtische Willy-Brandt-Gesamtschule ist eine Schule der besonderen Art. Ihre Organisationsstruktur vereinigt in den Jahrgangstufen 5 - 10 die drei herkömmlichen Schullaufbahnen (Mittelschule - Realschule - Gymnasium). Für Fachoberschulgänger ist die Robert-Koch FOS in 8 Gehminuten (700 m) erreichbar.
In unmittelbarer Umgebung befinden sich Einkaufsmöglichkeiten und Gastronomie. Das Mira-Einkaufszentrum ist auch nur 6 Gehminuten (500 m) entfernt.
Für Schwimmanfänger gibt es in 500 m Entfernung eine Schwimmschule. Nach Erlangen des Freischwimmerscheins kann mein sein gelerntes im nahegelegenen Feldmochinger See unter Beweis stellen.
Für Naturliebhaber ist das Naturschutzgebiet Fröttmanninger Heide (Panzerwiese) in 11 Gehminuten (900 m) erreichbar und bietet Wanderungen mit sonnigen und schattigen Abschnitten.
Ausstattung:
Energieausweis:
- A+
- A
- B
- C
- D
- E
- F
- G
- H
- Baujahr:
- 2017
- Endenergiebedarf:
- 40,7 kWh/(m²a)
- Energieausweis:
- Bedarfsausweis
- Energieeffizienzklasse:
- A+
- Energieausweis gültig bis:
- 14.06.2030
Ausstattungsbeschreibung:
- Erstklassige Leicht-Marken-Einbauküche mit Siemens Elektrogeräten- Hochwertiger Fliesenbodenbelag in Holzoptik
- Helles luxuriöses Bad mit Badewanne und ebenerdige Dusche im ersten Obergeschoss
- Helles exklusives Bad mit ebenerdiger Dusche im Untergeschoss sowie im Dachgeschoss
- Luftiges Schlafzimmer mit zusätzlichem Raum zur individuellen Nutzung im Dachgeschoss
- Großer Hobbyraum im Untergeschoss, ca. 25 m² mit Fußbodenheizung und Tageslicht
- Anschluss für Kaminofen ist vorhanden
- Überdachte Südterrasse EG und überdachter Südbalkon im 1. OG
- Luft-Wärme Pumpe mit Solar
- KFZ-Außenstellplatz
Sonstige Angaben:
Ihre Ansprechpartnerin, Frau Bölük, steht Ihnen für eine unverbindliche Besichtigung gerne unter 0160-8105140 oder 089-552152-13 zur Verfügung. Alle genannten Angaben zur Immobilie beruhen auf Informationen des Eigentümers. Für Richtigkeit und Vollständigkeit wird keine Haftung übernommen. Für den Käufer fällt eine Maklercourtage in Höhe von 3,57% berechnet aus dem notariell beurkundeten Kaufpreis inkl. der gesetzlichen Mehrwertsteuer an. Wir sind uneingeschränkt berechtigt auch für den anderen Vertragsteil tätig zu werden.Sie wollen mehr erfahren?
Wenn Sie uns eine Nachricht über das Kontaktformular senden, melden wir uns schnellstmöglich bei Ihnen:





















